zwei
werkstatt
Herzog · Architekten
Kita
FC St. Pauli
Backoffice
Stadionwache
Theaterzentrum
Wohnen
Galerie
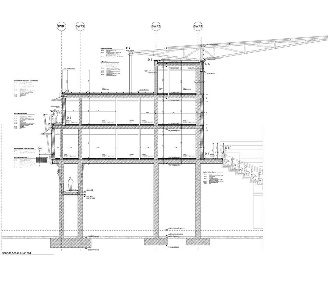
KITA Piratennest
Eine Kindertagesstätte im Millerntor-Stadion mit 1250 m² Geschossfläche. Begeisterte Bauherren und zukünftige Nutzer unterstützten unsere Idee, ein Piratennest als Gelenk zwischen der Süd- und Westtribüne zu planen. Die abgerundete Form der mosaikverkleideten Fassade überträgt sich strukturell auf den Innenraum. Die Mittelgangerschließung wird durch diese parabelförmige Krümmung der Wände zu einem spannenden Zentrum der Kita. Über 100 Kinder werden jetzt auf zwei Ebenen betreut und genießen von der 270 m² großen Dachterrasse, mit Piratenschiff, nach Süden den Ausblick zur Skyline von Hamburg. Die konzeptionelle Verbindung zum Stadion entsteht auf dem Spielbalkon der Kita Richtung Spielfeld, der an Spieltagen den tobend Kindern das Zuschauen ermöglicht. Die ganze Kita steht auf Stützen über dem Luftgeschoss mit Löwengang, der die Verbindung zwischen den Tribünen West und Süd ermöglicht. Das Kooperationsprojekt "Kindertagesstätte im Stadion", zwischen dem FC St. Pauli als Bauherr und der Pestalozzi-Stiftung Hamburg als Betreiber, ist in dieser Form weltweit einzigartig.
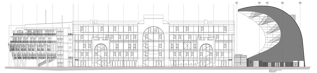
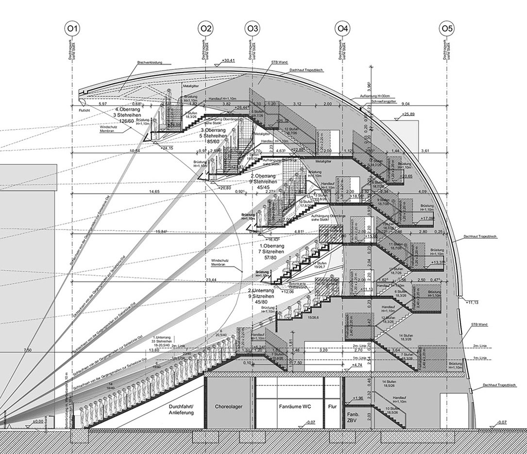
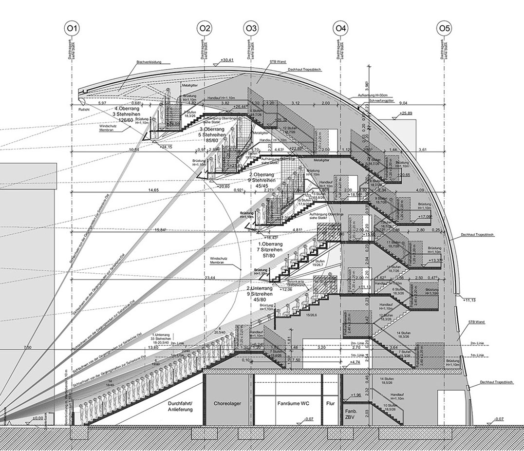
Gegengerade Alternativentwurf
Die Welle: Im zweiten Halbjahr 2011 haben wir auf
Basis des Grundentwurfs von Interpol+- Architecture für den Alternativvorschlag zum Standardmodell der Gegengerade im Auftrag des FC St. Pauli die Entwurfsplanung zusammen mit den Architekten von Interpol+- durchgeführt. Eine charakteristische Tribünenkonstruktion für eine charakteristische Tribüne: Geplant als Kontrast zum konventionellen Bau der Haupt- sowie der Südtribüne, sollte die Welle der besonderen Bedeutung der Gegengerade Rechnung tragen. Mit einfachen und elementaren Formen, grundfunktional aufgebaut, gleichzeitig unverwechselbar. Im Mittelpunkt: Eine besondere Nähe zum Spielfeld, optimale Sichtfelder - eine Welle, die sich auf das Spielfeld überträgt.
Der Abdruck der Entwurfszeichnungen erfolgt mit freundlicher Genehmigung von Interpol +-
Séparées
Auf den Ebenen 3+4 der Haupttribüne gibt es 40 Séparées (andere Vereine nennen es Logen). Fans feiern hier auf 25 m² den FC St. Pauli, mit direktem Blick ins Stadion. Die Partizipation der Mieter startete bei der Übergabe des Rohbaus. Dabei haben wir mit vier verschiedenen Nutzern vier verschiedene Séparées ausgestattet. Es entstanden stark individualisierte Boxen, mit teilweise selbstironischen Gestaltungselementen.
Gästezugang Neugestaltung
Alle zwei Wochen ist Heimspiel für den FC St. Pauli. Das bedeutet ca. 3000 Gästefans werden an der Nord-Ost Ecke des Millerntorstadion Willkommen geheißen. Die Eingangssituation für die Gäste zu entwerfen war daher eine kleine aber wichtige Aufgabe. In Abstimmung mit Feuerwehr und Polizei entstand das Bauwerk mit vier Stahlbeton-Wandscheiben und Stahldach. Hier findet eine Vereinzelung der Menschenmassen statt, die dem Ordnungsdienst die Kontrolle ermöglicht, die benötigt wird, um im Stadion die Sicherheit zu gewährleisten.